Prime Downtown Office/Retail – Sarasota, FL For Sale

  • $725000

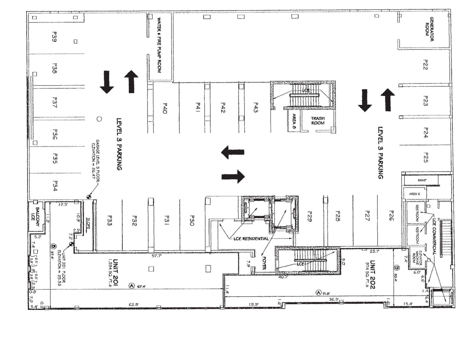
Premiere Downtown Sarasota location on Main St. The 2nd floor office condo is located within The Jewel, an impeccable mixed-use condo tower. The ground floor entry is finished with a white porcelain tile floor which is complimented by grey marble walls which leads to a private elevator that takes you to your suite. The ground floor entry to the suite provides secure 24 hour access via a fob. The nicely finished elevator offers lovely views of Main St. as you rise to the 2nd floor. Perhaps you prefer to take the contiguous open air stairs instead. Upon exiting the elevator you will see two large wonderfully built out ADA compliant bathrooms that are located in the common area. As you enter the suite you are immediately taken back by its elegance. Tall ceilings, immense natural lighting coming from windows that run the length of the suite and offer amazing views below. Striking porcelain floors and a very simple sleek feel. The space has a generous kitchenette as well. Towards the back their is a private office with it’s own smaller kitchenette allowing privacy for the owner should there be employees about. This is truly a rare find in the best part of downtown Sarasota….and is priced at a great value.

Price:
$725000
Address:
1301 Main St.
Sarasota, FL 34236
Terms:
For Sale
Property Type:
Commercial
Year Built:
2016

Call 941-207-9707 for more details

Property Location

Call Us!
941-207-9707